選擇閉口樓承板要考慮的因素
在城市里隨處可見高樓大廈,而鄉鎮里也紛紛建起了高樓,國家的建筑行業發展越來越好,而閉口樓承板也因此得到了廣泛的應用,足以說明閉口樓承板的重要性越來越高,所以我們在選購時更加要慎重,要考慮很多因素,下面海逵小編來為大家介紹一下閉口樓承板如何選擇。

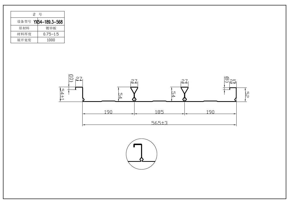
事實上,閉口樓承板的應用也很廣泛,在各個摩天大樓,在火車站房,在體育館,辦公室的樓層等。選擇它,要考慮型號,型號是根據樓承板的波高,波高是由混凝土澆注的高度而決定著。其次,要看它的厚度,厚度是由板下面的鋼梁所決定著,一般情況下,鋼梁不要過3米,像一些小的建筑,只達到1米或者2米左右,甚至有的小于1米,也就是說,選擇閉口樓承板還要睦它應用在哪些場所,正確的選擇,才能滿足建筑施工的要求。
下一篇:樓承板的防火效果和剛度簡述
上一篇:樓承板是怎樣一步步搶占優勢的”
聯系海逵
無錫海逵樓承板是專業樓承板廠家,提供開、縮、閉口樓承板、壓型鋼板、鋼筋桁架樓承板、鋁鎂錳板及CZ型鋼,廠家直銷,價格優惠!

